About This Product
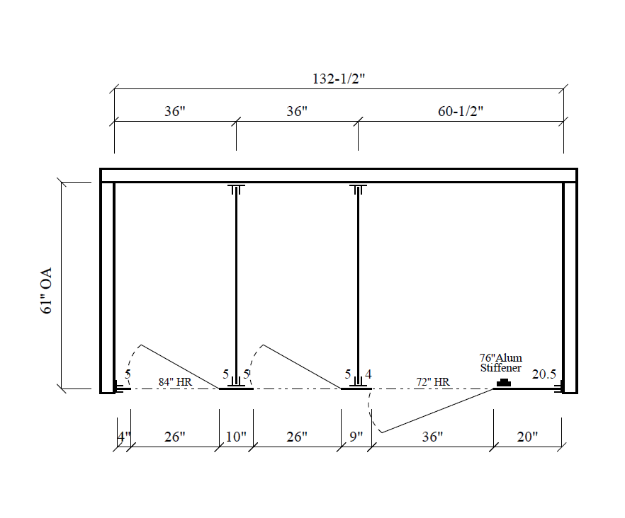
Create an accessible and efficient commercial restroom layout with this 3-stall right-hand between-walls bathroom partition configuration featuring one ADA-compliant stall and two standard stalls. Designed to install securely between existing walls, this layout helps maximize restroom space while ensuring accessibility and dependable privacy for all users.
This configuration includes one ADA-accessible stall and two standard commercial toilet partitions, making it an ideal solution for offices, schools, restaurants, retail stores, and other public facilities that must meet accessibility requirements while maintaining a clean and functional restroom design.
Our restroom partitions are manufactured from durable, moisture-resistant materials built to withstand high-traffic commercial environments. Additionally, multiple privacy heights, customizable color options, and partition materials are available, allowing you to match the partitions to your facility’s design and performance needs.
Standard sizes are available for easy ordering, and custom restroom partition layouts can also be created if your space requires different dimensions. Simply contact our team by phone, email, or through our online quote tool for assistance.
ADA Accessible Stall
-
60″ x 60″ clear interior dimensions
-
36″ outswing door for wheelchair accessibility
-
Designed to comply with ADA restroom accessibility guidelines
Standard Stall
-
36″ x 60″ stall dimensions
-
26″ inswing door
-
Designed to maximize restroom efficiency and space usage
Complete Hardware Package Included
Each restroom partition system includes a complete hardware package, ensuring the installation process is straightforward and efficient.
Specifically, your order includes:
-
Mounting brackets for secure wall installation
-
Door hardware for smooth and reliable operation
-
Durable stainless steel fasteners
-
A complete commercial partition hardware kit
In addition, every order includes full submittal documentation and detailed installation instructions, which helps contractors and installers complete the project with confidence.
Custom Restroom Partition Options
Because every commercial restroom has unique layout requirements, we offer a wide range of customization options in addition to our standard configurations.
For example, customization options include:
-
Custom restroom stall dimensions
-
Modified layouts for unusual spaces
-
Multiple partition material options
-
Custom color selections
-
High-privacy partition heights
While standard height restroom partitions are typically available for quick shipping, taller high-privacy restroom partitions may require additional lead time.
Ideal Applications
As a result of its efficient layout and ADA-compliant design, this commercial restroom partition configuration is commonly installed in a wide variety of facilities, including:
-
Office buildings
-
Schools and universities
-
Restaurants and hospitality venues
-
Retail stores and shopping centers
-
Medical facilities
-
Airports and transportation hubs
Product Information
Internet # Not Available
Model #







Reviews
There are no reviews yet.