About This Product
Create an efficient and reliable restroom layout with this 2-stall right-hand between-walls bathroom partition configuration featuring two standard stalls. Designed to install securely between existing walls, this layout helps maximize available restroom space while providing dependable privacy and functionality for everyday use.
Our restroom partitions are manufactured from durable, moisture-resistant materials designed to perform in high-traffic commercial environments. Furthermore, multiple privacy heights, customizable color options, and partition material choices are available, allowing you to match the partitions to your facility’s design and performance needs.
You can easily order this configuration in standard dimensions, or if your restroom requires different sizing or a modified layout, our team can help create a custom restroom partition solution. Simply call, email, or use our convenient online quote tool to request a customized configuration. If you need additional guidance, our restroom partition experts are always available to assist.
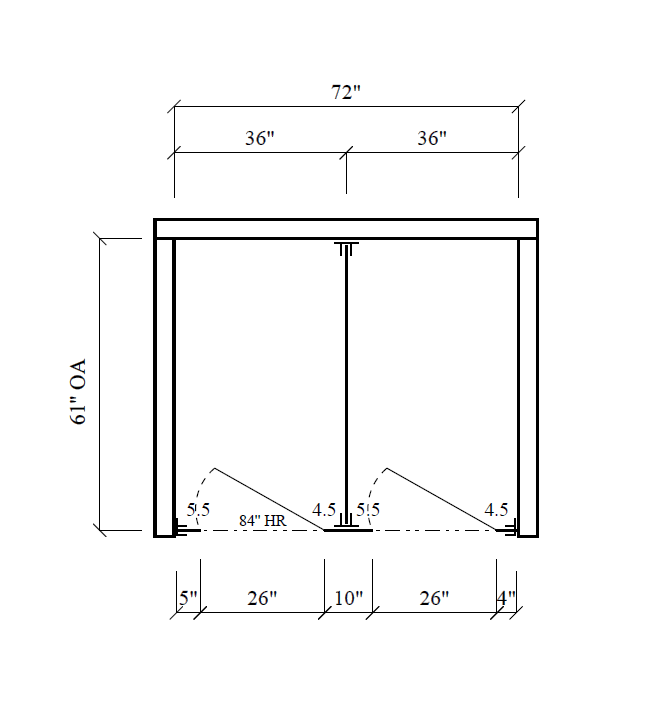
Standard Stall Dimensions
-
36″ x 60″ stall dimensions
-
26″ inswing door
-
Designed to maximize restroom efficiency and space usage
Complete Hardware Package Included
Each restroom partition system includes a complete hardware package, ensuring the installation process is straightforward and efficient.
Specifically, your order includes:
-
Mounting brackets for secure wall installation
-
Door hardware for smooth and reliable operation
-
Durable stainless steel fasteners
-
A complete commercial partition hardware kit
In addition, every order includes full submittal documentation and detailed installation instructions, which helps contractors and installers complete the project with confidence.
Custom Restroom Partition Options
Because every commercial restroom has unique layout requirements, we offer a wide range of customization options in addition to our standard configurations.
For example, customization options include:
-
Custom restroom stall dimensions
-
Modified layouts for unusual spaces
-
Multiple partition material options
-
Custom color selections
-
High-privacy partition heights
While standard height restroom partitions are typically available for quick shipping, taller high-privacy restroom partitions may require additional lead time.
Ideal Applications
As a result of its efficient layout, this commercial restroom partition configuration is commonly installed in a wide variety of facilities, including:
-
Office buildings
-
Schools and universities
-
Restaurants and hospitality venues
-
Retail stores and shopping centers
-
Medical facilities
-
Airports and transportation hubs
Product Information
Internet # Not Available
Model #







Reviews
There are no reviews yet.