About This Product
Optimize your commercial restroom with this 2-stall bathroom partition system featuring one ADA-compliant stall, designed for between-wall installations. This layout supports accessibility requirements while providing durable privacy partitions that help maximize restroom space.
Engineered for strength and everyday performance, our commercial restroom partitions provide a dependable solution for high-traffic environments including offices, schools, restaurants, retail spaces, and public facilities. With adjustable privacy heights, customizable colors, and durable moisture-resistant materials, these toilet partitions are built to handle constant use while maintaining a polished appearance.
Our toilet partitions are manufactured from durable, moisture-resistant materials built to withstand heavy daily traffic in commercial environments. Multiple privacy heights, color options, and material choices allow you to customize your restroom partitions to match your facility’s design and performance needs.
If your restroom requires unique dimensions or a different layout, we also offer custom bathroom partition configurations. Simply contact our team by phone or email, or use our online quote tool to create a fully customized restroom stall solution.
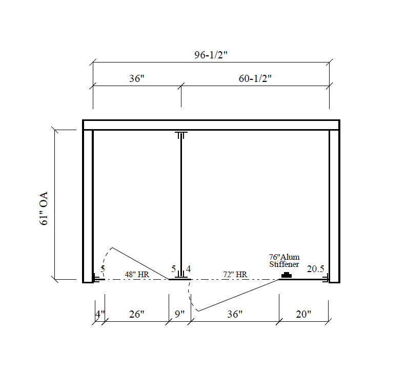
ADA and Standard Stall Dimensions
This layout includes both an ADA-accessible stall and a standard commercial restroom stall:
ADA Accessible Stall
-
60″ x 60″ clear interior dimensions
-
36″ outswing door for wheelchair accessibility
-
Designed to meet ADA restroom accessibility guidelines
Standard Stall
-
36″ x 60″ stall dimensions
-
26″ inswing door
-
Efficient design for maximizing restroom capacity
Complete Hardware Package Included
Your restroom partition system arrives with all necessary installation components, making the setup process straightforward and efficient.
Included with your order:
-
Mounting brackets for secure wall installation
-
Door hardware for smooth operation
-
Durable stainless steel fasteners
-
Complete partition hardware package
All orders also include full submittal documentation and detailed assembly instructions to assist contractors and installers during the installation process.
Custom Restroom Partition Options
Every facility has unique restroom layout requirements. In addition to standard configurations, we offer:
-
Custom restroom stall sizes
-
Modified layouts for unique spaces
-
Multiple partition materials
-
Custom color selections
-
High-privacy partition heights
Standard height partitions are typically available for quick shipping, while taller high-privacy restroom partitions may require additional lead time.
Ideal Applications
This ADA-compliant commercial restroom partition layout is commonly installed in:
-
Office buildings
-
Schools and universities
-
Restaurants and hospitality venues
-
Retail stores and shopping centers
-
Medical facilities
-
Airports and transportation hubs
Product Information
Internet # Not Available
Model #







Reviews
There are no reviews yet.