About This Product
Create an efficient and space-saving restroom layout with this 1-stall right-hand in-corner bathroom partition configuration. This design fits neatly into a right-hand corner, allowing facilities to maximize available restroom space while still providing reliable privacy and functionality for everyday use.
You can order this configuration in standard dimensions, or alternatively contact our team by phone, email, or through our online quote tool to receive a fully customized partition layout designed specifically for your space.
Furthermore, our restroom partitions are built using durable, moisture-resistant materials designed to perform reliably in high-traffic commercial environments. Multiple privacy heights, customizable color options, and material choices are also available, allowing you to match your partitions to the design and performance needs of your facility.
If you need additional information or assistance selecting the right configuration, our restroom partition experts are always available to help.
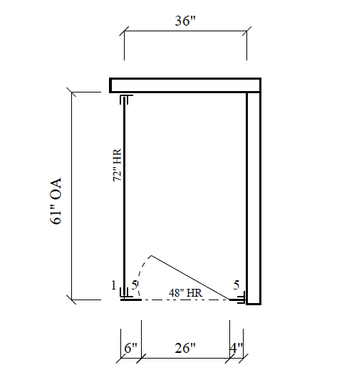
Standard Stall Dimensions
-
36″ x 60″ stall dimensions
-
26″ inswing door
-
Designed to maximize restroom efficiency and space usage
Complete Hardware Package Included
Each restroom partition system includes a complete hardware package, ensuring the installation process is straightforward and efficient.
Specifically, your order includes:
-
Mounting brackets for secure wall installation
-
Door hardware for smooth and reliable operation
-
Durable stainless steel fasteners
-
A complete commercial partition hardware kit
In addition, every order includes full submittal documentation and detailed installation instructions, which helps contractors and installers complete the project with confidence.
Custom Restroom Partition Options
Because every commercial restroom has unique layout requirements, we offer a wide range of customization options in addition to our standard configurations.
For example, customization options include:
-
Custom restroom stall dimensions
-
Modified layouts for unusual spaces
-
Multiple partition material options
-
Custom color selections
-
High-privacy partition heights
While standard height restroom partitions are typically available for quick shipping, taller high-privacy restroom partitions may require additional lead time.
Ideal Applications
As a result of its efficient layout, this commercial restroom partition configuration is commonly installed in a wide variety of facilities, including:
-
Office buildings
-
Schools and universities
-
Restaurants and hospitality venues
-
Retail stores and shopping centers
-
Medical facilities
-
Airports and transportation hubs
Product Information
Internet # Not Available
Model #







Reviews
There are no reviews yet.