About This Product
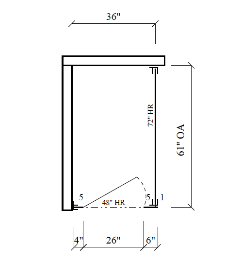
Create an efficient commercial restroom layout with this 1-stall left-hand in-corner bathroom partition configuration. This design features one standard restroom stall arranged in a space-saving corner layout, helping facilities maximize available restroom space while maintaining privacy, durability, and a clean, organized environment.
Our restroom partitions are designed specifically for high-traffic commercial environments. They are manufactured from durable, moisture-resistant materials, which helps ensure long-term performance even in demanding restroom conditions. At the same time, multiple material types, color options, and privacy heights are available, allowing you to match your restroom partitions to the design and performance needs of your facility.
If your restroom layout requires different dimensions or a unique configuration, we also offer custom bathroom partition systems. Simply contact our team by phone or email, or alternatively use our online quote tool to design a restroom partition layout that fits your exact space.
Standard Stall
-
36″ x 60″ stall dimensions
-
26″ inswing door
-
Designed to maximize restroom efficiency and space usage
Complete Hardware Package Included
Each restroom partition system includes a complete hardware package, ensuring the installation process is straightforward and efficient.
Specifically, your order includes:
-
Mounting brackets for secure wall installation
-
Door hardware for smooth and reliable operation
-
Durable stainless steel fasteners
-
A complete commercial partition hardware kit
In addition, every order includes full submittal documentation and detailed installation instructions, which helps contractors and installers complete the project with confidence.
Custom Restroom Partition Options
Because every commercial restroom has unique layout requirements, we offer a wide range of customization options in addition to our standard configurations.
For example, customization options include:
-
Custom restroom stall dimensions
-
Modified layouts for unusual spaces
-
Multiple partition material options
-
Custom color selections
-
High-privacy partition heights
While standard height restroom partitions are typically available for quick shipping, taller high-privacy restroom partitions may require additional lead time.
Ideal Applications
As a result of its efficient layout, this commercial restroom partition configuration is commonly installed in a wide variety of facilities, including:
-
Office buildings
-
Schools and universities
-
Restaurants and hospitality venues
-
Retail stores and shopping centers
-
Medical facilities
-
Airports and transportation hubs
Product Information
Internet # Not Available
Model #







Reviews
There are no reviews yet.